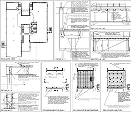
With all changes to the interior of commercial buildings you are legally obliged to make an application to ensure the works and design comply with building regulations. This can be done prior to, or parallel with the works and i can help you with all the necessary drawings, applications and negotiations with the officers concerned.



Return to services page